Project name
The Timber School
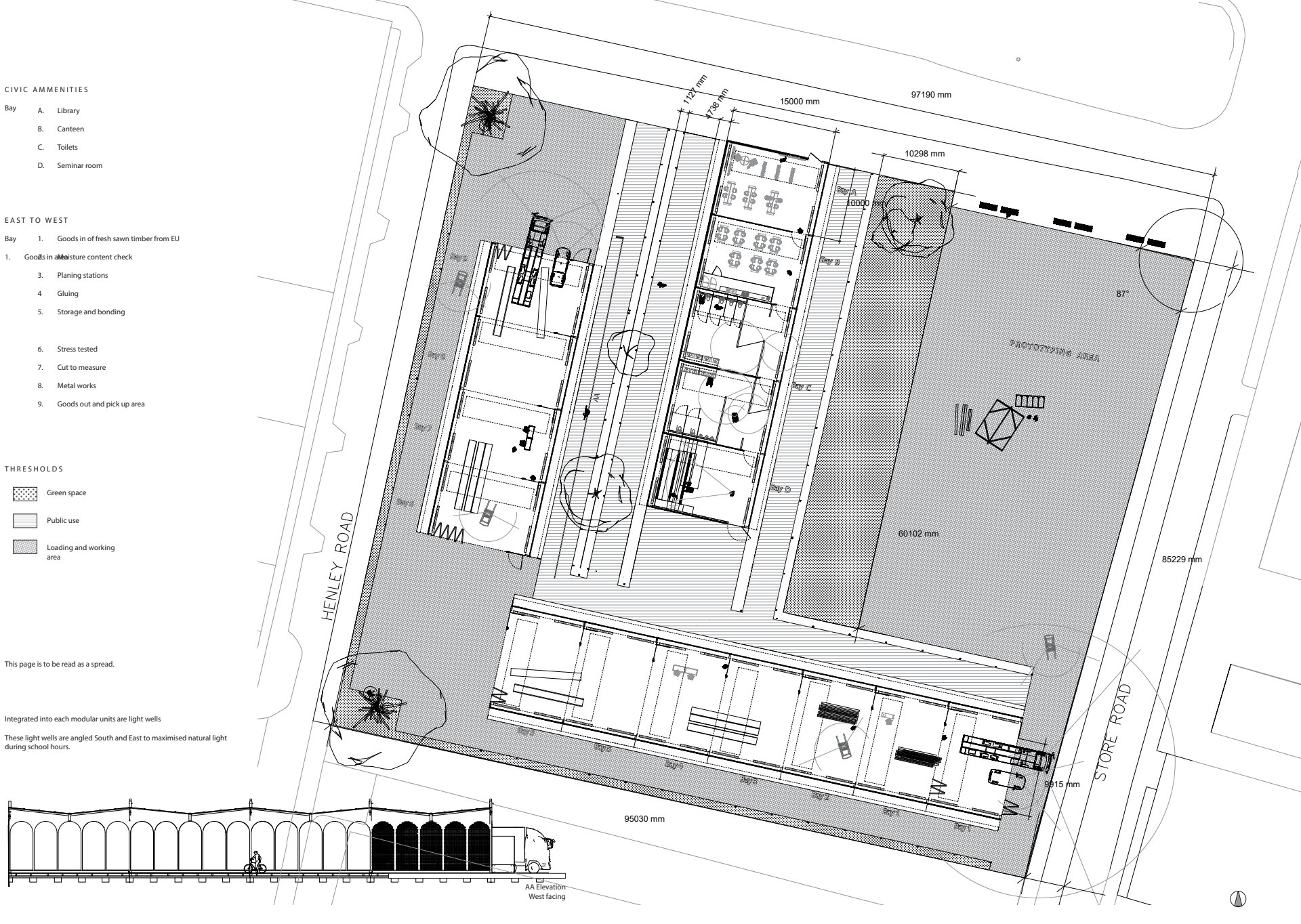
Brief
Polyvalent warehouse design
Position
Using sustainable materials to further increase the UK economy of CLT production
An exploration of Cross Laminated Timber on UK economy
Project name
The Timber School
Brief
Polyvalent warehouse design
Position
Using sustainable materials to further increase the UK economy of CLT production
An exploration of Cross Laminated Timber on UK economy